
Spacious single bowl that can easily accommodate your largest pots, pans, baking sheets, and roasting trays. Great for deep soaking and reduces the divider that can get in the way of large dishwashing.
16-Gauge Stainless Steel 16-gauge is a premium, heavy-duty material. This provides superior resistance to dents, scratches, and warping, ensuring long-lasting durability.
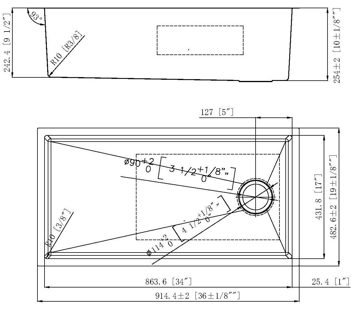
The sink can be installed with the side drain on either the left or the right, providing maximum flexibility to match your plumbing and under-cabinet space layout.
The drain is located near one side of the sink bowl, not the center. This key feature: * Maximizes Usable Sink Space: You can stack dishes on the main, flat area without blocking the drain. * Maximizes Under-Cabinet Storage: The plumbing components (like a garbage disposal) are pushed to the side, freeing up valuable space underneath the sink for cleaning supplies or a trash bin.